Brunswick Centre: A London Icon

E.Ittepic 141 views
Brunswick Centre: A London Icon

Brunswick Centre: A London Icon

Hey guys! Let’s dive into one of London’s most iconic architectural landmarks: The Brunswick Centre. This place isn’t just a building; it’s a whole vibe, a testament to bold design, and a hub of activity right in the heart of Bloomsbury. Whether you’re an architecture enthusiast, a London local, or a curious traveler, the Brunswick Centre has something to offer. This comprehensive guide will take you through everything you need to know about this unique space, from its history and design to what you can do there today. So, buckle up and get ready to explore! This iconic structure, a brutalist masterpiece , stands as a testament to innovative urban planning and architectural vision. Its distinctive ziggurat-like form and bold use of concrete make it instantly recognizable. But the Brunswick Centre is more than just a pretty face; it’s a vibrant community hub, offering a mix of residential spaces, shops, restaurants, and cultural attractions. This guide dives deep into the heart of the Brunswick Centre, exploring its rich history, architectural significance, and the diverse experiences it offers to visitors and residents alike. So, whether you’re an architecture aficionado, a history buff, or simply looking for a unique London experience, the Brunswick Centre is sure to captivate your senses and leave a lasting impression. Its story is one of architectural ambition, urban renewal, and the enduring power of community.

History of the Brunswick Centre

The Brunswick Centre’s history is as fascinating as its design. Envisioned in the 1960s by architect Patrick Hodgkinson, the project aimed to create a mixed-use space that combined housing, retail, and community facilities. Hodgkinson’s vision was radical for its time, challenging conventional urban planning with its focus on creating a self-contained, pedestrian-friendly environment. The center was designed to be a social utopia, where residents could live, work, and play without ever needing to leave the complex. The Brunswick Centre was completed in 1972, but it wasn’t without its challenges. The original vision faced several setbacks, including budget constraints and changing social priorities. Despite these hurdles, the center persevered and eventually became a beloved landmark in London. Its initial construction faced numerous hurdles, including economic downturns and changing urban planning philosophies. However, the structure persevered, becoming a symbol of architectural resilience and a testament to Hodgkinson’s enduring vision. Over the years, the Brunswick Centre has undergone several renovations and adaptations to meet the evolving needs of its community. These changes have helped to preserve its architectural integrity while ensuring its continued relevance in the 21st century. Today, the Brunswick Centre stands as a proud reminder of its ambitious beginnings, a vibrant hub that continues to inspire and serve the people of London. Its story is one of architectural innovation, social ambition, and the enduring power of community spirit.

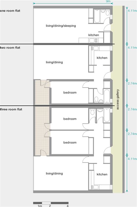
Architectural Significance

The architecture of the Brunswick Centre is a prime example of Brutalist design. Characterized by its use of exposed concrete, geometric shapes, and monumental scale, Brutalism was a popular architectural style in the post-war era. The Brunswick Centre’s ziggurat-like form, with its stepped terraces and repetitive modules, is a classic example of this style. But what makes the Brunswick Centre truly special is how Hodgkinson incorporated human-scale elements into the design. The open courtyards, pedestrian walkways, and carefully planned landscaping create a welcoming and livable environment. The building’s design fosters a sense of community and encourages social interaction. The architectural significance of the Brunswick Centre extends beyond its aesthetic appeal. It represents a bold experiment in urban planning, a vision of how cities could be designed to promote social cohesion and improve the quality of life for residents. Its impact on architectural discourse and urban design continues to be felt today. The building’s unique design has made it a subject of both admiration and criticism, but its influence on architectural trends is undeniable. It stands as a testament to the power of architectural vision and the importance of considering the social impact of design. From its imposing facade to its thoughtfully designed interior spaces, every aspect of the Brunswick Centre speaks to its architectural significance. It’s a building that demands attention, challenges conventions, and inspires new ways of thinking about urban living. Its legacy is one of innovation, ambition, and the enduring power of architectural design.

What to Do and See at the Brunswick Centre

So, you’re planning a visit? Awesome! The Brunswick Centre offers a wide array of activities and attractions. For film buffs, the Renoir Cinema is a must-visit, showcasing a diverse range of independent and arthouse films. Foodies will rejoice at the center’s diverse culinary offerings, from casual cafes to upscale restaurants. Shopaholics can browse the various boutiques and retailers, offering everything from fashion to home goods. But the Brunswick Centre is more than just a place to shop and dine. It’s a community hub where you can relax, soak up the atmosphere, and enjoy the vibrant energy of London. Take a stroll through the open courtyards, admire the architecture, and people-watch. The Brunswick Centre is a place where you can truly experience the pulse of the city. Beyond the shops and restaurants, the Brunswick Centre hosts a variety of events and activities throughout the year, from art exhibitions to live music performances. Check the center’s website or social media channels for the latest happenings. Whether you’re looking for entertainment, culture, or simply a place to unwind, the Brunswick Centre has something for everyone. It’s a destination that appeals to locals and tourists alike, offering a unique blend of experiences in the heart of London. So, come explore, discover, and immerse yourself in the vibrant atmosphere of the Brunswick Centre. You won’t be disappointed! The Brunswick Centre isn’t just a place to visit; it’s an experience that will leave you inspired and energized.

Getting There and Practical Information

Alright, let’s talk logistics. Getting to the Brunswick Centre is super easy, thanks to its central location and excellent transport links. The nearest tube station is Russell Square, which is served by the Piccadilly Line. Several bus routes also stop nearby, making it convenient to reach the center from all parts of London. Once you arrive, you’ll find the Brunswick Centre to be a pedestrian-friendly environment. The open courtyards and walkways make it easy to navigate and explore. The center is also wheelchair accessible, ensuring that everyone can enjoy the experience. Before you visit, it’s a good idea to check the opening hours of the shops and restaurants you plan to visit. Some establishments may have different hours on weekends or holidays. You can find this information on the Brunswick Centre’s website or by contacting the individual businesses directly. While you’re there, take advantage of the free Wi-Fi available throughout the center. This allows you to stay connected, share your experiences on social media, and easily access information about the Brunswick Centre and its surroundings. Whether you’re arriving by tube, bus, or on foot, getting to the Brunswick Centre is a breeze. Its convenient location and accessible design make it a welcoming destination for all. So, plan your visit today and get ready to experience the unique charm of this iconic London landmark. You won’t regret it!

The Brunswick Centre Today

Today, the Brunswick Centre continues to thrive as a vibrant mixed-use development. It’s home to a diverse community of residents, businesses, and cultural organizations. The center has undergone several renovations and improvements over the years, ensuring that it remains a modern and attractive destination. Despite the changes, the Brunswick Centre has retained its unique architectural character and its commitment to creating a welcoming and inclusive environment. It stands as a testament to the enduring power of good design and the importance of community-focused development. The Brunswick Centre is more than just a building; it’s a living, breathing part of London’s urban fabric. It’s a place where people come together to live, work, play, and connect. Its story is one of resilience, adaptation, and the unwavering pursuit of a better urban environment. As you explore the Brunswick Centre today, you’ll sense the energy and vibrancy that make it such a special place. You’ll see people from all walks of life, enjoying the shops, restaurants, and cultural attractions. You’ll feel the sense of community that permeates every corner of the center. The Brunswick Centre is a place where you can truly experience the best of London. So, come visit, explore, and discover the magic of this iconic landmark. You’ll be glad you did! The Brunswick Centre is a destination that will stay with you long after you’ve left, a reminder of the power of architectural vision and the importance of creating spaces that enrich our lives.

Conclusion

In conclusion, the Brunswick Centre is more than just a building; it’s a symbol of architectural innovation, community spirit, and urban resilience. From its ambitious beginnings in the 1960s to its vibrant present, the Brunswick Centre has played a significant role in shaping the landscape of London. Its unique design, diverse offerings, and commitment to inclusivity make it a truly special place. Whether you’re an architecture enthusiast, a history buff, or simply looking for a unique London experience, the Brunswick Centre has something to offer. So, plan your visit today and discover the magic of this iconic landmark. You won’t be disappointed! The Brunswick Centre is a destination that will inspire, energize, and leave you with a lasting appreciation for the power of good design and the importance of community. Its story is one that continues to unfold, a testament to the enduring spirit of innovation and the unwavering pursuit of a better urban environment. As you explore the Brunswick Centre, take a moment to appreciate its history, its architecture, and its vibrant community. It’s a place that will stay with you long after you’ve left, a reminder of the beauty and potential of urban spaces. So, come, explore, and discover the Brunswick Centre – a true London icon.